首页 > 新闻中心 > 技术文章
技术文章

XSG-18旋转闪蒸干燥机安装技术要求

浏览次数:9852012/10/06  

XSG-18旋转闪蒸干燥机安装技术要求

按用户基础工程设计图示位置、方向和空间进行安装;

主机所有地脚均应与地面踏实,经调整后安装水平度大小2/1000;

地脚螺栓与主机连接应保证牢固可靠,着地端应踏实。

在设备周围应设有排水沟,以便设备清洗时排水。

安装

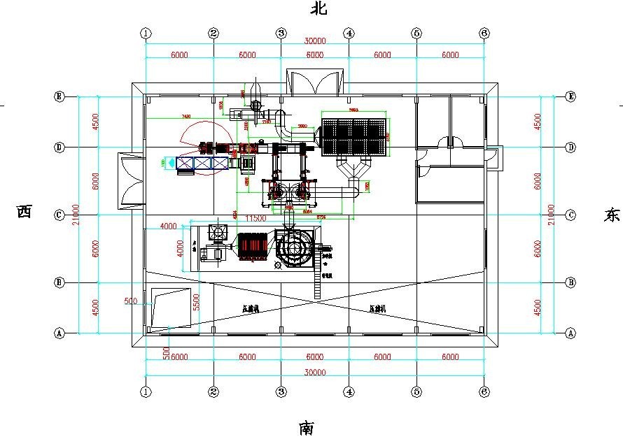
XSG-18旋转闪蒸干燥机主机安装布置图

安装主机的地方应平整,其表面的平面度误差要求为±2mm;场地宽阔,空间高度应便于主机的安装。

将主机安装于离墙面间距为1m×1m,便于检修,其他辅机安装也遵照此规定,要保证便于安装,拆装、维修。

查看更多(共0)评论列表
暂无内容
我要评论
内容 *
验证码 *
 
扫码进入公众号
联系我们
  • 联系电话:0519-88968880
  • 手  机:18136711288/13806118222
  • 传  真:0519-88968686
  • 电子邮箱:lm@chinalemar.com
  • 联系地址:常州西太湖科技产业园锦华路11号
CopyRight © 2020-2025 英国·威廉希尔(williamhill)唯一中文官方网站 版权所有  苏ICP备16003336号 网站地图  所有标签   常州网络公司中环互联网设计制作  免责声明